130 Warrandyte Road, RINGWOOD
AUCTION
overview
-
1P2596
-
House
-
Auction
-
840 sqm
-
Sun 1st of Feb12:00 PM
-
On Site
-
5
-
2
-
1
Documents
Description
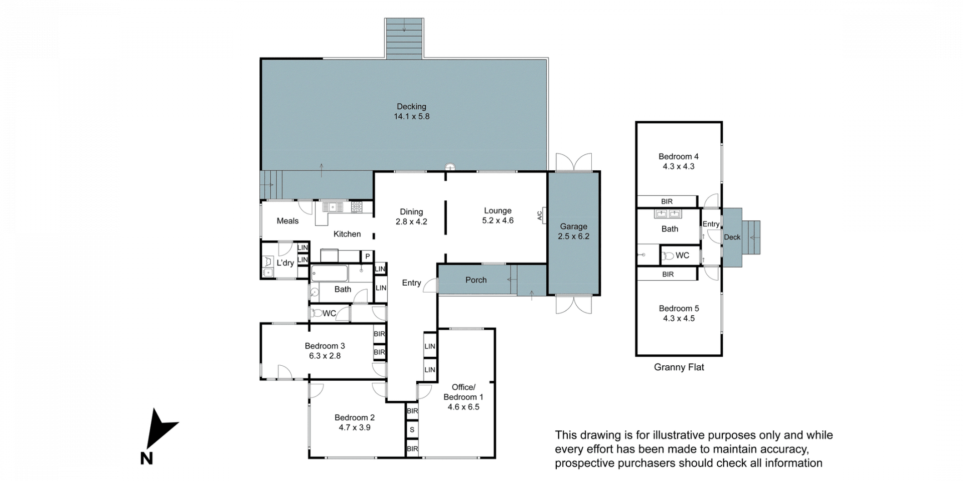
Five Bedroom Family House With Development Potential
Amazing 5-bedrooms, majestic Ranges views and a premier location moments from schools, shops and freeways .
Offering flexibility for the large family or those running a home business, the main residence presents three huge bedrooms, two with direct external access making them ideal for a business set up, serviced by a family bathroom, separate toilet and laundry.
Polished floorboards and high ceilings adorn the lounge room, while a central dining zone connects through to the classically styled kitchen with Westinghouse appliances. Catering for the consummate entertainer, a magnificent alfresco deck with bar area, plumbed gas plus hot/cold running water runs across the rear of the home and embraces breathtaking Ranges views.
With the large backyard offering easy access to the bungalow boasting two additional bedrooms, each with built-in-robes and accompanied by a central bathroom and separate toilet. Adding additional allure, you'll find ducted heating, an air conditioner plus a single garage.
Wonderfully placed with a bus stop out front and opposite Norwood Park, only a short walk to Norwood Secondary, Mullum Primary and North Ringwood shops or take a quick drive to the vibrant Eastland Shopping Centre, Costco or EastLink Freeway.
Offering flexibility for the large family or those running a home business, the main residence presents three huge bedrooms, two with direct external access making them ideal for a business set up, serviced by a family bathroom, separate toilet and laundry.
Polished floorboards and high ceilings adorn the lounge room, while a central dining zone connects through to the classically styled kitchen with Westinghouse appliances. Catering for the consummate entertainer, a magnificent alfresco deck with bar area, plumbed gas plus hot/cold running water runs across the rear of the home and embraces breathtaking Ranges views.
With the large backyard offering easy access to the bungalow boasting two additional bedrooms, each with built-in-robes and accompanied by a central bathroom and separate toilet. Adding additional allure, you'll find ducted heating, an air conditioner plus a single garage.
Wonderfully placed with a bus stop out front and opposite Norwood Park, only a short walk to Norwood Secondary, Mullum Primary and North Ringwood shops or take a quick drive to the vibrant Eastland Shopping Centre, Costco or EastLink Freeway.
